
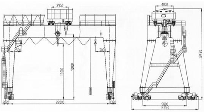
Tunge løft kran, dobbelt stråle Gantry kran 30 Ton
Dobbelt stråle gantry kran med kroge anvendes uden for lagerstedet eller railway sidelæns for at gøre fælles løft og losning værker. Denne type kran er sammensat af broen, støtte ben, kran omrejsende orgel, vogn med stærk hejse winch, elektrisk udstyr og kontrolsystem. Som sin tunge design, kan det være almindeligt anvendt i alle typer af industrielle område.
tunge løft kran, dobbelt stråle gantry kran 30 ton
Dobbelt stråle gantry kran med kroge anvendes uden for lagerstedet eller railway sidelæns for at gøre fælles løft og losning værker. Denne type kran er sammensat af broen, støtte ben, kran omrejsende orgel, vogn med stærk hejse winch, elektrisk udstyr og kontrolsystem. Som sin tunge design, kan det være almindeligt anvendt i alle typer af industrielle område.






English
日本語
عربي
bosanski
עברית
한국어
اردو
Lietuvių
Italiano
Čeština
українська
suomi





