
HD Type European Hoist Electric Single-Gear Overhead Crane
European Single Girder Overhead Crane er kompakt løftemaskiner designet og fremstillet i overensstemmelse med FEM og DIN standard, som med avanceret teknologi og smukt design. Opdelt i almindelig type og suspension type, der understøtter brugen af europæisk standard elektrisk hejsning, egnet til værksted og lagerhåndtering, store dele præcisionsmontering og andre steder.
HD Type European Hoist Electric Single-Gear Overhead Crane
Kort beskrivelse:
European Single Girder Overhead Crane er kompakt løftemaskiner designet og fremstillet i overensstemmelse med FEM og DIN standard, som med avanceret teknologi og smukt design. Opdelt i almindelig type og suspension type, der understøtter brugen af europæisk standard elektrisk hejsning, egnet til værksted og lagerhåndtering, store dele præcisionsmontering og andre steder.
Det kunne meget udbredes inden for fremstilling af maskiner, metallurgi, petroleum, petrifaction, havn, jernbane, civil luftfart, mad, papirfremstilling, konstruktion, elektronikindustriens værksted, lager og andre materielle håndteringssituationer, esp. Anvendes til materialehåndtering, der kræver præcis positionering, store komponenter præcise monteringssituation.
Detaljerede billeder:
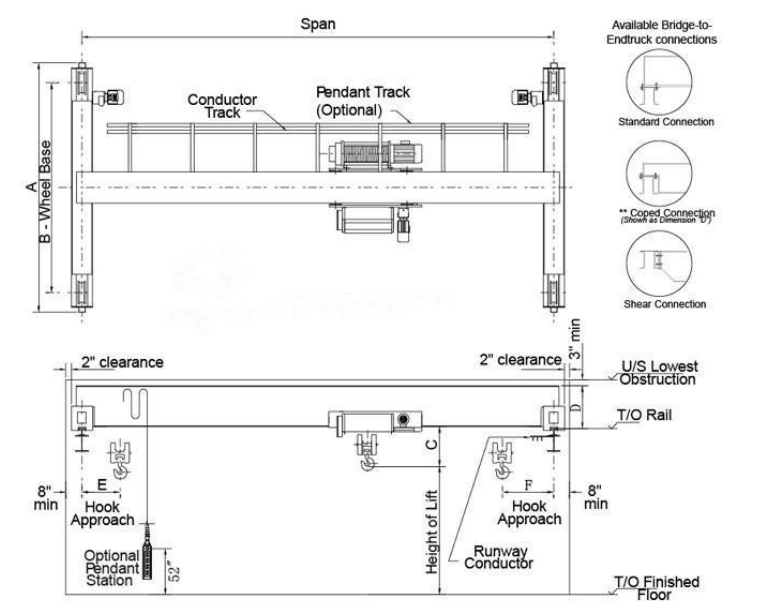
Skitse Tegning:
Tekniske parametre:
span | m | 7.5 | 10.5 | 13.5 | 16,5 | 19.5 | 22.5 | 25,5 |
Kapacitet | t | 1 ~ 12.5t | ||||||
Totalvægt | kg | 1781 ~ 12086 | ||||||
Vognvægt | kg | 405 ~ 740 | ||||||
Maks. Hjulbelastning | kn | 13.5 ~ 90,94 | ||||||
Rejseskinne | P24 ~ P43 | |||||||
Løftehastighed | m / min | 0,8 / 5 | 0,8 / 5 | 0,8 / 5 | 0,8 / 5 | 0,8 / 5 | 0,8 / 5 | 0,8 / 5 |
Løftehøjde | m | ≥ 6 | ≥ 6 | ≥ 6 | ≥ 6 | ≥ 6 | ≥ 6 | ≥ 6 |
Total motorkraft | kw | 4,31 | 4,31 | 4,31 | 4,31 | 4,67 | 4,67 | 4,67 |
Kranhastighed | m / min | 3-30 | 3-30 | 3-30 | 3-30 | 3-30 | 3-30 | 3-30 |
Vognhastighed | m / min | 2-20 | 2-20 | 2-20 | 2-20 | 2-20 | 2-20 | 2-20 |
Arbejdstjeneste | M5 / A5 |